+88 01798 97 55 51
+88 01798 97 55 51
English
বাংলা
ABT
হোম
ড্রয়িং
প্রজেক্টস
প্রডাক্টস
DESIGN BLOCK
ERECTION CONTROL BLOCK
HOLLOW BLOCK
KERB STONE
PARKING TILES
SOLID BRICKS
UNI PAVER
গ্যালারি
ক্যাটালগ
সাপোর্ট
টিম
সম্পর্কে
প্রশ্নোত্তর
যোগাযোগ
প্রজেক্টস
হোম
/
প্রজেক্টস
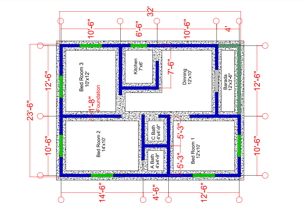
এক তলা ভবন
3 bedroom,kitchen,2bathroom,belcony
ছবির সংগ্রহশালা
ভিডিও
প্রকল্পের তথ্য
মডেল নং : Project-24
ভবনের আকার : 830(Sqft)
খরচ : 755000(BDT)
সময়কাল : 20-04-2025 To 20-04-2025
অবস্থা : Completed
যোগাযোগ করুন
শেরপুর , বগুড়া
01798975551
imo
01798975551
শেরপুর , বগুড়া
01732626355
imo
©
ABT
. All Rights Reserved.